Sprzedaż I Etapu już ruszyła! Zapraszamy do kontaktu i biura sprzedaży!

Zamieszkaj w bezpiecznej, zielonej oraz dobrze skomunikowanej okolicy, z której blisko do miasta i wielu jego udogodnień.

Wybierz dom o powierzchni 82 m² z garażem i miejscem postojowym lub dwoma miejscami postojowymi w cenie mieszkania w Siedlcach

Skorzystaj z wielu opcji wprowadzenia zmian lokatorskich oraz pakietów podwyższających standard domu.

Świetnie skomunikowane nie tylko z Siedlcami

Osiedle Ujrzanów to idealne połączenie spokojnego życia na przedmieściach z szybkim dostępem do pełnej infrastruktury dużych miast. Do samego centrum Siedlec możesz dotrzeć w niecałe 10 minut, zarówno samochodem, jak i komunikacją miejską – wszystko dzięki dogodnej lokalizacji blisko kluczowych tras dojazdowych oraz przystanków autobusowych. Co więcej, łatwy dostęp do stacji PKP, obwodnicy i węzła autostrady A2 sprawia, że osiedle jest doskonale skomunikowane z całym regionem, umożliwiając Ci komfortowe podróże m.in. do Warszawy.

Galeria Siedlce z Kinem Helios

(6,5 km) – 12 min samochodem

Stacja PKP Siedlce

(6 km) – 11 min samochodem

Centrum Warszawy

(100 km) – 1 godz. 15 min samochodem

Przystanek autobusowy linii nr 37

(100 m) – 3 min spacerem

Doskonałe połączenie natury i miejskich wygód

Osiedle zlokalizowane jest w Ujrzanowie pod numerem 116 w gminie Siedlce. To spokojna, zielona okolica, otoczona polami i lasami, które zachęcają do spacerów oraz wycieczek rowerowych. Możesz tutaj cieszyć się bliskością natury, a jednocześnie korzystać z wygód miasta – w pobliżu jest centrum handlowe, lokalny dom kultury oraz plac zabaw dla najmłodszych. Paczkomat tuż przy osiedlu zapewnia dodatkowy komfort. To idealne miejsce dla osób, które pragną połączyć aktywny styl życia z łatwym dostępem do niezbędnych usług i rozrywek.

Cisza, spokój, tereny zielone

(0 km) – na miejscu!

Centrum handlowe Stop Shop

(4 km) – 5 min samochodem

Najbliższa szkoła podstawowa

(4 km) – 5 min samochodem

Plac zabaw i lokalny dom kultury

(50 m) – 2 min spacerem

Twój własny zakątek z ogrodem i miejscem na samochód

Osiedle Ujrzanów to kameralna inwestycja, obejmująca 33 domy w kilku wariantach o powierzchni od 75 do 100 m², każdy z prywatnym ogrodem, gdzie odpoczniesz po dniu pełnym wyzwań. Dla jeszcze większej wygody, wybrane domy są dostępne z garażami, a do każdego przynależą jedno lub dwa miejsca postojowe dla samochodów – wszystko, by ułatwić Ci codzienne życie.

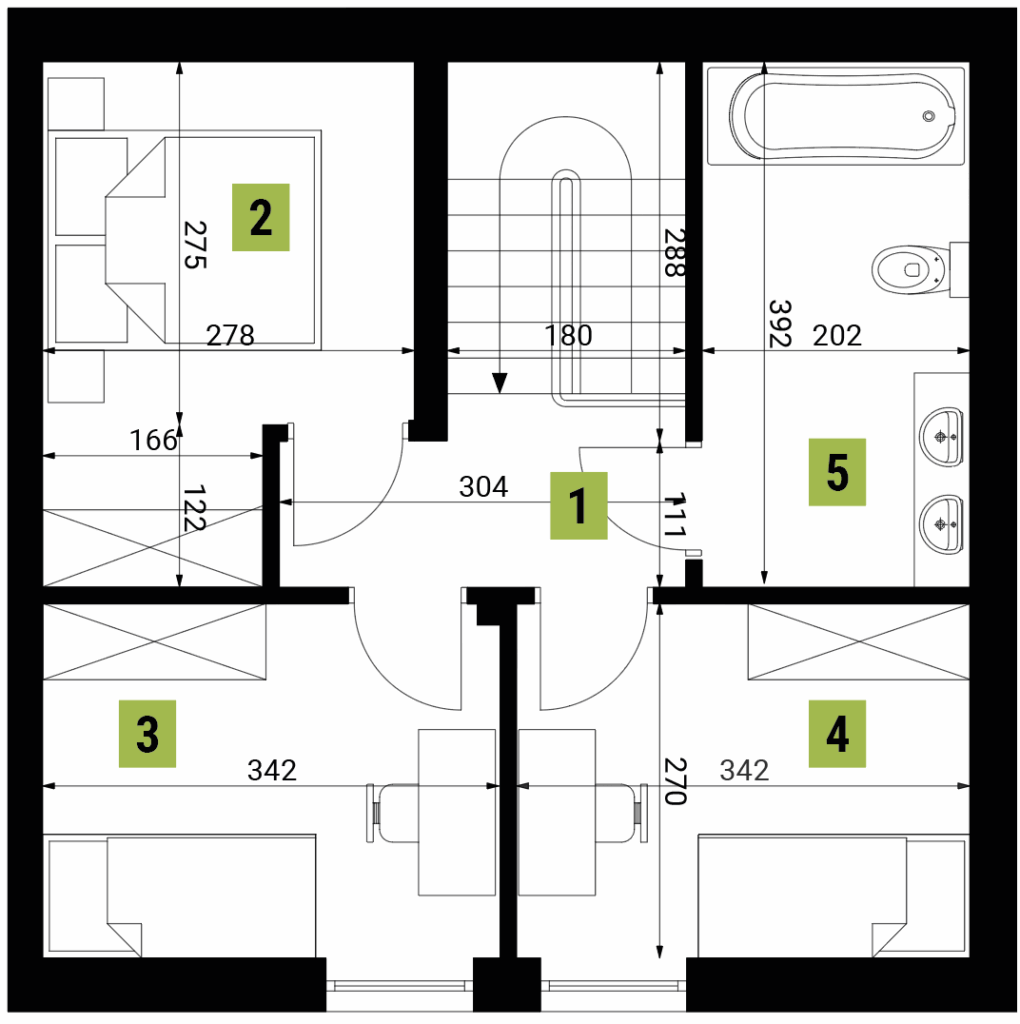
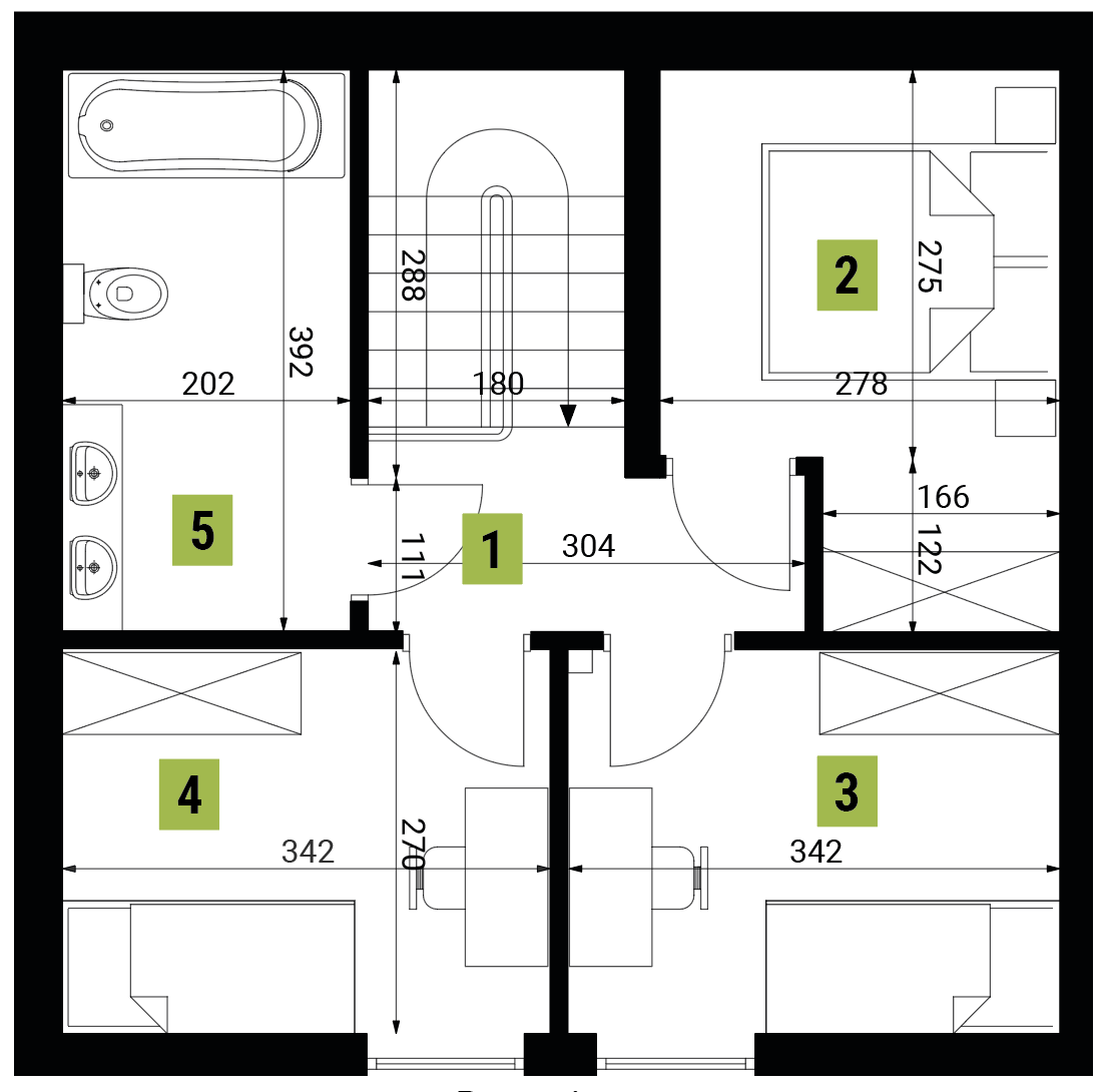
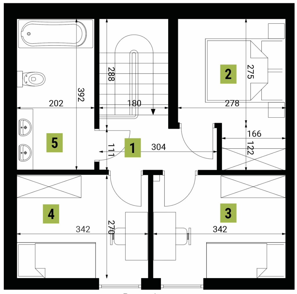
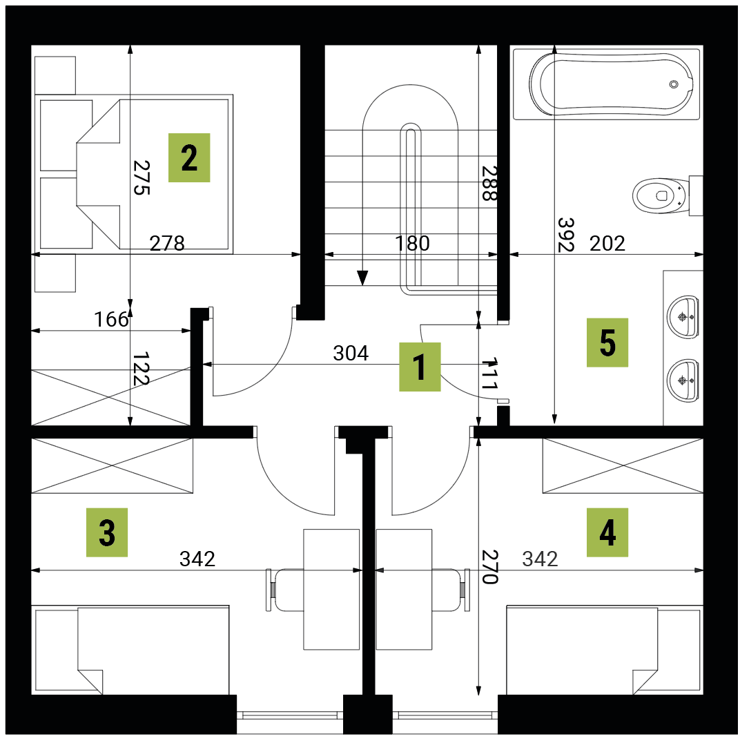
Przestronny salon, komfortowa łazienka i 3 funkcjonalne sypialnie

Sercem Twojego nowego domu będzie salonu połączony z otwartą kuchnią, który tworzy idealne warunki na rodzinne wieczory i spotkania z przyjaciółmi. Przez szerokie okno tarasowe wpada do wnętrza mnóstwo naturalnego światła, tworząc przytulny klimat. Na piętrze znajdują się trzy sypialnie, które możesz zaaranżować według potrzeb – na pokoje dziecięce, domowe biuro lub strefę relaksu. Dostępna jest również duża łazienka z miejscem na wannę. Dzięki ogrzewaniu podłogowemu możesz urządzać wnętrza bez ograniczeń związanych z grzejnikami, co daje jeszcze większe możliwości dekoracyjne i funkcjonalne.

Dom, który do Ciebie pasuje

Osiedle Ujrzanów to miejsce, gdzie to Ty decydujesz o funkcjonalności swojego domu! Wybierając go na wczesnym etapie budowy, masz możliwość wprowadzenia wielu zmian lokatorskich, dzięki czemu dopasujesz przestrzeń do swojego stylu życia. Możesz dowolnie rozplanować układ pomieszczeń, a także sposób prowadzenia instalacji. Aby jeszcze bardziej podnieść komfort mieszkania, oferujemy szeroki wybór dodatkowych rozwiązań.

Sprawdź możliwości podwyższenia standardu domu*

Klimatyzacja - przygotowanie miejsca lub pełna instalacja

Inteligentny dom – przygotowanie miejsca lub pełna instalacja

Instalacja alarmowa

Cieplejszy dom – dodatkowa warstwa ocieplenia strychu

Pompa ciepła – pełna instalacja

Panele fotowoltaiczne – przygotowanie miejsca lub pełna instalacja

*opcje są dodatkowo płatne według indywidualnej wyceny

Wybierz najlepszy dom dla siebie!

Loading...
Rezerwacja(3)Sprzedane(30)
Pow. działki
Metraż
Dostępność
Nr.Numer Typ PtPiętro Pok.Pokoje Metraż.Metraż OgródPow. działki ExtraOgród BudynekBudynek DostępnośćDostępność Cena PlanWirtualny
1 A 0 4 90,41m2 256,00m2 Brak 1 Rezerwacja 700000 zł
NR: Nr: 1 Pokoje: 4 Metraż: Metraż: 90,41m2 Ogród: 256,00m2 Rezerwacja
700 000.00 zł
7 742.51 zł/m2
2B B 0 4 74,98m2 102,56m2 Brak 2 Rezerwacja 560000 zł
NR: Nr: 2B Pokoje: 4 Metraż: Metraż: 74,98m2 Ogród: 102,56m2 Rezerwacja
560 000.00 zł
7 468.66 zł/m2
2A A 0 4 74,98m2 102,46m2 Brak 2 Rezerwacja 560000 zł
NR: Nr: 2A Pokoje: 4 Metraż: Metraż: 74,98m2 Ogród: 102,46m2 Rezerwacja
560 000.00 zł
7 468.66 zł/m2
3A A 0 4 74,98m2 116,85m2 Brak 3 Sprzedane 550000 zł
NR: Nr: 3A Pokoje: 4 Metraż: Metraż: 74,98m2 Ogród: 116,85m2 Sprzedane
550 000.00 zł
7 335.29 zł/m2
3B B 0 4 74,98m2 102,47m2 Brak 3 Sprzedane 540000 zł
NR: Nr: 3B Pokoje: 4 Metraż: Metraż: 74,98m2 Ogród: 102,47m2 Sprzedane
540 000.00 zł
7 201.92 zł/m2
4A A 0 4 74,98m2 102,27m2 Brak 4 Sprzedane 550000 zł
NR: Nr: 4A Pokoje: 4 Metraż: Metraż: 74,98m2 Ogród: 102,27m2 Sprzedane
550 000.00 zł
7 335.29 zł/m2
4B B 0 4 74,98m2 102,36m2 Brak 4 Sprzedane 550000 zł
NR: Nr: 4B Pokoje: 4 Metraż: Metraż: 74,98m2 Ogród: 102,36m2 Sprzedane
550 000.00 zł
7 335.29 zł/m2
5A A 0 4 74,98m2 102,37m2 Brak 5 Sprzedane 540000 zł
NR: Nr: 5A Pokoje: 4 Metraż: Metraż: 74,98m2 Ogród: 102,37m2 Sprzedane
540 000.00 zł
7 201.92 zł/m2
5B B 0 4 74,98m2 102,27m2 Brak 5 Sprzedane 540000 zł
NR: Nr: 5B Pokoje: 4 Metraż: Metraż: 74,98m2 Ogród: 102,27m2 Sprzedane
540 000.00 zł
7 201.92 zł/m2
6B B 0 4 74,98m2 102,16m2 Brak 6 Sprzedane 540000 zł
NR: Nr: 6B Pokoje: 4 Metraż: Metraż: 74,98m2 Ogród: 102,16m2 Sprzedane
540 000.00 zł
7 201.92 zł/m2
6A A 0 4 74,98m2 102,06m2 Brak 6 Sprzedane 540000 zł
NR: Nr: 6A Pokoje: 4 Metraż: Metraż: 74,98m2 Ogród: 102,06m2 Sprzedane
540 000.00 zł
7 201.92 zł/m2
7A A 0 4 74,98m2 102,17m2 Brak 7 Sprzedane 540000 zł
NR: Nr: 7A Pokoje: 4 Metraż: Metraż: 74,98m2 Ogród: 102,17m2 Sprzedane
540 000.00 zł
7 201.92 zł/m2
7B B 0 4 74,98m2 102,07m2 Brak 7 Sprzedane 540000 zł
NR: Nr: 7B Pokoje: 4 Metraż: Metraż: 74,98m2 Ogród: 102,07m2 Sprzedane
540 000.00 zł
7 201.92 zł/m2
8A A 0 4 74,98m2 101,86m2 Brak 8 Sprzedane 540000 zł
NR: Nr: 8A Pokoje: 4 Metraż: Metraż: 74,98m2 Ogród: 101,86m2 Sprzedane
540 000.00 zł
7 201.92 zł/m2
8B B 0 4 74,98m2 101,96m2 Brak 8 Sprzedane 540000 zł
NR: Nr: 8B Pokoje: 4 Metraż: Metraż: 74,98m2 Ogród: 101,96m2 Sprzedane
540 000.00 zł
7 201.92 zł/m2
9A A 0 4 74,98m2 101,97m2 Brak 9 Sprzedane 540000 zł
NR: Nr: 9A Pokoje: 4 Metraż: Metraż: 74,98m2 Ogród: 101,97m2 Sprzedane
540 000.00 zł
7 201.92 zł/m2
9B B 0 4 74,98m2 101,87m2 Brak 9 Sprzedane 540000 zł
NR: Nr: 9B Pokoje: 4 Metraż: Metraż: 74,98m2 Ogród: 101,87m2 Sprzedane
540 000.00 zł
7 201.92 zł/m2
10A A 0 4 74,98m2 101,66m2 Brak 10 Sprzedane 550000 zł
NR: Nr: 10A Pokoje: 4 Metraż: Metraż: 74,98m2 Ogród: 101,66m2 Sprzedane
550 000.00 zł
7 335.29 zł/m2
10B B 0 4 74,98m2 101,76m2 Brak 10 Sprzedane 550000 zł
NR: Nr: 10B Pokoje: 4 Metraż: Metraż: 74,98m2 Ogród: 101,76m2 Sprzedane
550 000.00 zł
7 335.29 zł/m2
11A A 0 4 74,98m2 101,76m2 Brak 11 Sprzedane 550000 zł
NR: Nr: 11A Pokoje: 4 Metraż: Metraż: 74,98m2 Ogród: 101,76m2 Sprzedane
550 000.00 zł
7 335.29 zł/m2
11B B 0 4 74,98m2 101,66m2 Brak 11 Sprzedane 550000 zł
NR: Nr: 11B Pokoje: 4 Metraż: Metraż: 74,98m2 Ogród: 101,66m2 Sprzedane
550 000.00 zł
7 335.29 zł/m2
12A A 0 4 74,98m2 101,45m2 Brak 12 Sprzedane 540000 zł
NR: Nr: 12A Pokoje: 4 Metraż: Metraż: 74,98m2 Ogród: 101,45m2 Sprzedane
540 000.00 zł
7 201.92 zł/m2
12B B 0 4 74,98m2 101,55m2 Brak 12 Sprzedane 540000 zł
NR: Nr: 12B Pokoje: 4 Metraż: Metraż: 74,98m2 Ogród: 101,55m2 Sprzedane
540 000.00 zł
7 201.92 zł/m2
13A A 0 4 74,98m2 101,56m2 Brak 13 Sprzedane 550000 zł
NR: Nr: 13A Pokoje: 4 Metraż: Metraż: 74,98m2 Ogród: 101,56m2 Sprzedane
550 000.00 zł
7 335.29 zł/m2
13B B 0 4 74,98m2 101,46m2 Brak 13 Sprzedane 550000 zł
NR: Nr: 13B Pokoje: 4 Metraż: Metraż: 74,98m2 Ogród: 101,46m2 Sprzedane
550 000.00 zł
7 335.29 zł/m2
14A A 0 4 74,98m2 92,02m2 Brak 14 Sprzedane 540000 zł
NR: Nr: 14A Pokoje: 4 Metraż: Metraż: 74,98m2 Ogród: 92,02m2 Sprzedane
540 000.00 zł
7 201.92 zł/m2
14B B 0 4 74,98m2 101,35m2 Brak 14 Sprzedane 540000 zł
NR: Nr: 14B Pokoje: 4 Metraż: Metraż: 74,98m2 Ogród: 101,35m2 Sprzedane
540 000.00 zł
7 201.92 zł/m2
15A A 0 4 74,98m2 101,35m2 Brak 15 Sprzedane 540000 zł
NR: Nr: 15A Pokoje: 4 Metraż: Metraż: 74,98m2 Ogród: 101,35m2 Sprzedane
540 000.00 zł
7 201.92 zł/m2
15B B 0 4 74,98m2 92,02m2 Brak 15 Sprzedane 540000 zł
NR: Nr: 15B Pokoje: 4 Metraż: Metraż: 74,98m2 Ogród: 92,02m2 Sprzedane
540 000.00 zł
7 201.92 zł/m2
16A A 0 4 74,98m2 216,50m2 Brak 16 Sprzedane 565000 zł
NR: Nr: 16A Pokoje: 4 Metraż: Metraż: 74,98m2 Ogród: 216,50m2 Sprzedane
565 000.00 zł
7 535.34 zł/m2
16B B 0 4 110,67m2 259,82m2 Brak 16 Sprzedane 600000 zł
NR: Nr: 16B Pokoje: 4 Metraż: Metraż: 110,67m2 Ogród: 259,82m2 Sprzedane
600 000.00 zł
5 421.52 zł/m2
17A A 0 4 92,85m2 221,18m2 Brak 17 Sprzedane 620000 zł
NR: Nr: 17A Pokoje: 4 Metraż: Metraż: 92,85m2 Ogród: 221,18m2 Sprzedane
620 000.00 zł
6 677.44 zł/m2
17B B 0 4 74,98m2 137,88m2 Brak 17 Sprzedane 565000 zł
NR: Nr: 17B Pokoje: 4 Metraż: Metraż: 74,98m2 Ogród: 137,88m2 Sprzedane
565 000.00 zł
7 535.34 zł/m2

O inwestorze

Celem Aro Development BIS Sp. z o.o. jest tworzenie nowoczesnych przestrzeni, które – choć oddalone od zgiełku miasta – wciąż pozwalają na wygodne korzystanie z jego wszystkich zalet. Energiczny zespół specjalistów w swoich inwestycjach stawia na funkcjonalne projekty, wysokiej jakości materiały oraz atrakcyjne lokalizacje budowanych nieruchomości. Spółka wychodzi naprzeciw oczekiwaniom nawet najbardziej wymagających klientów, oferując im domy, w których mieszka się niezwykle komfortowo, spokojnie i beztrosko.

Jak wygląda proces zakupu nieruchomości?

Rozmawiamy przez telefon lub online.

Spotykamy się na budowie

Sporządzamy umowę rezerwacyjną

Podpisujemy umowę deweloperską

Podpisujemy akt notarialny przenoszący własność

Przekazujemy Ci klucze do domu

*klucze są przekazywane po wybudowaniu inwestycji

Bezpłatna konsultacja z ekspertem kredytowym

Na możliwość uzyskania finansowania na wymarzony dom wpływa wiele informacji. Warto zebrać je wcześniej, aby przyspieszyć cały proces. Nasz ekspert ds. kredytów sprawdzi Twoją zdolność kredytową, omówi dostępne oferty, odpowie na pytania związane z programami rządowymi i pomoże w załatwieniu wszystkich formalności.

Skorzystaj z kalkulatora kredytów

Skontaktuj się!

Umów spotkanie - Biuro sprzedaży

Miejsce inwestycji:

Formularz kontaktowy